Création et réalisation d'un lotissement à Port-En-Bessin-Huppain
Posted by gatoman on Monday, 31 January 2022
Description:
Création et réalisation d'un lotissement à Port-En-Bessin-Huppain
2021_lotissement_Vestam_lots_Port-En-Bessin-Huppain
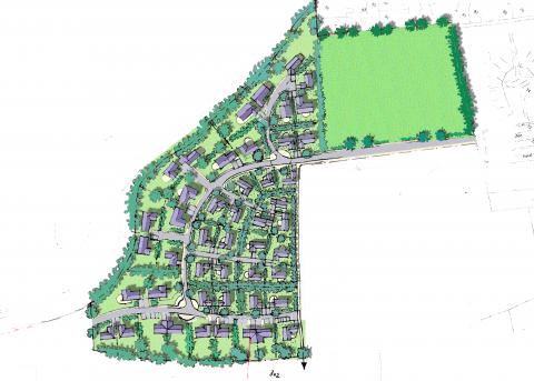
Maître d’ouvrage : VESTAMAssociation avec AménagéoType de mission : Conception, réalisationEtude en cours 2021Caractéristiques : Aménagement de 55 parcelles d'une superficie comprise entre 350 et 700 m².
Annee:
2 021

