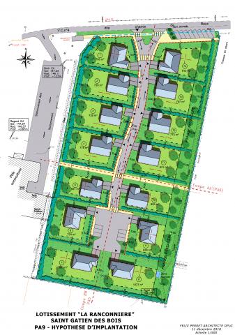
Création et réalisation d’un lotissement communal « La Rançonnière » à Saint Gatien des Bois
Posted by gatoman on Thursday, 25 March 2021
Description:
Création et réalisation d’un lotissement communal « La Rançonnière » à Saint Gatien des Bois
2019_lotissement_14 parcelles_Saint Gatien des Bois
Maître d’ouvrage : COMMUNE DE SAINT GATIEN DES BOIS_Association avec ABAC GEO Lisieux_Type de mission : Conception, réalisation_Permis d’aménagé accordé en 2019_Caractéristiques : Aménagement de 14 parcelles
Annee:
2 019

