Etude de faisabilité pour la création d'un lotissement à Auberville
Posted by gatoman on Monday, 15 April 2019
2018_lotissement_Auberville
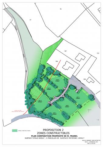
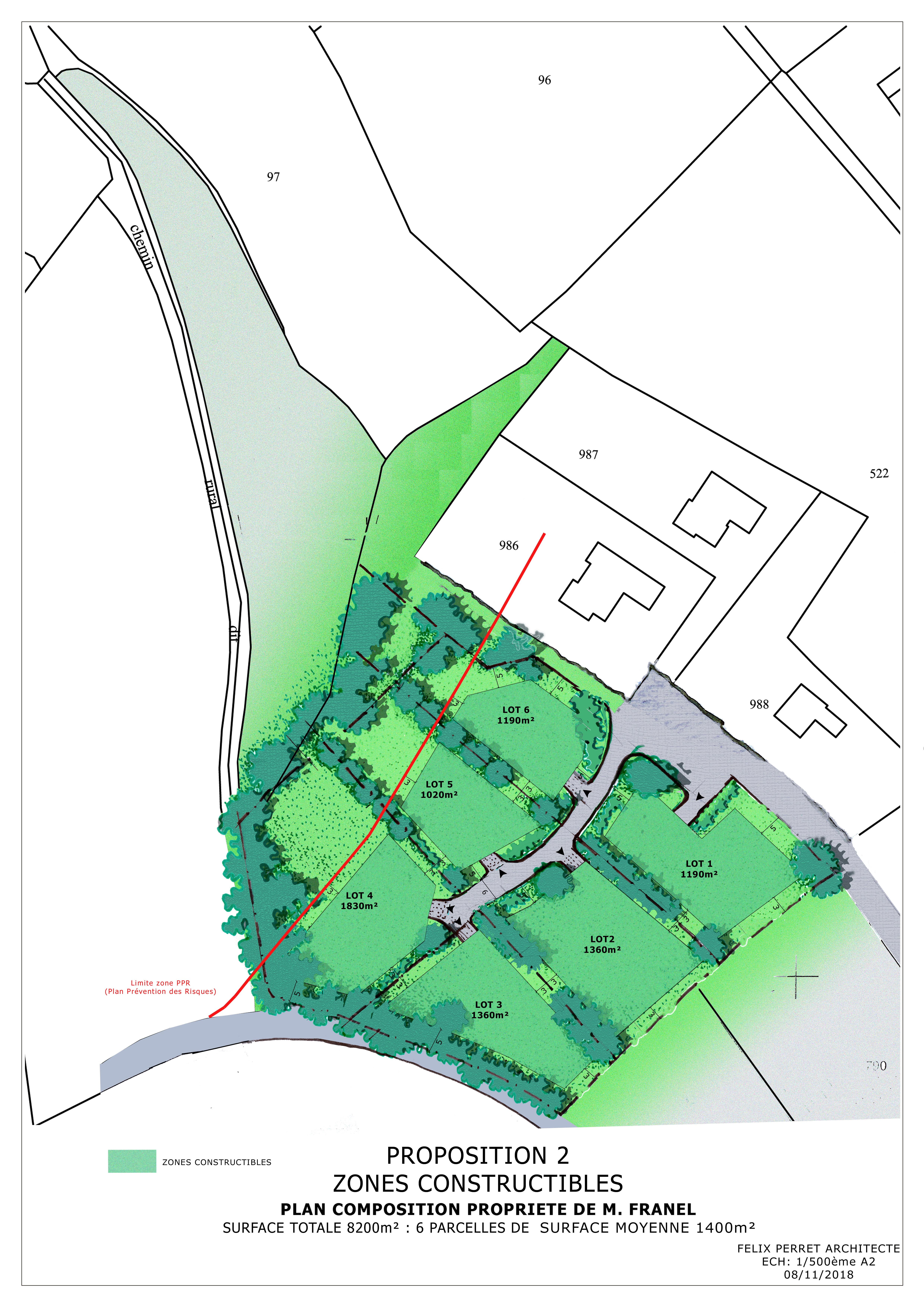
Maître d'ouvrage : M. Franel En association avec ABAC GEO Lisieux Type de mission : conception, réalisation Etude en cours 2018 Caractéristiques : aménagement de 6 parcelles d'environ 1200 m²
Annee:
2 018

